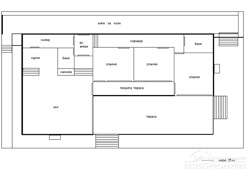
We offer for sale wonderful sea house, situated at southern Black sea, walking distance from Tzarevo and the Arapia area. The house is monolithic, one-floor, with total built up area of 320 sq m and the following disposition: living-room with kitchen box (90 sq m), three bedrooms (each with size of about 16 sq m), two bathrooms with WC (with size of 6 sq m), closet (30 sq m), corridors (30 sq m). There is a wonderful porch with size of 100 sq m with panoramic view towards the sea and the shore. The house is livable since July 2005.
The building is with internal thermal and noise isolation - German mineral isolation with aluminum foil and is paneled from inside with wood. The house is completely autonomous - independent from the capacity of energy and water supply in Tsarevo. The water id drinking from own water source with constant capacity of 300 liters per hour and all year round temperature of 12 degrees Celsius. The sewerage is individual, hermetically isolated in eight-cubic steel cistern which is cleaned via machine, outside the building. The house is completely on energy -saving light-emitting diode illumination. The total outgo of fuel for securing 24-hour functioning of the house including lighting, satellite TV, music -internal and external synchronization, use of washing machine and dish washer is I liter of petrol. The heating is realized via Italian combustible chamber, servicing all rooms with ventilator. The cooker, boiler for hot water and the refrigerator are gas. The electric installation is combined 12 and 220 V.
To the yard of 980 sq m there is adjoining elevated part from the sea shore with size of 2000 sq m, which can be used only by owners of the property because of its specific location. On this reason it is improved, as there is constructed summer bar disposed under 60 year-old elm trees. In the property's yard grow cypresses, palms, pomegranates, kiwi, olive, persimmon, laurel tree, rosemary, peaches, apricots, apples, plums, quince tree, meddler tree, as well as 30 vines from different Bulgarian and French sorts of grapes giving fruit during the entire season. The bay in front of the property is one of the most attractive places for underwater fishing on southern Black sea. It is leeward, protected from the open sea by underwater reef with opportunity for quay age of vessels with shallow wade and keel yachts with no danger for them during storm.
The area where the house is located is in the territory of natural park Strandzha This is the biggest protected natural area in Bulgaria, created to preserve the unique ecosystems and biodiversity and also for preservation of distinctive Strandzha folklore, culture and historical heritage. Its territory is over 1 % of our country's territory. Namely here in 1933 year is proclaimed the first reserve in Bulgaria - Silkosia. Strandzha is the only Bulgarian territory included in the five most significant for preservation territories in Central and East Europe. Over Strandzha the second largest migrating route of birds in Europe Via Pontica passes. The total number of species habitats is 121, as according to this indicator The Park is at first place in Europe.
