This is a new, fully finished house for sale located in the sea side resort of Byala.
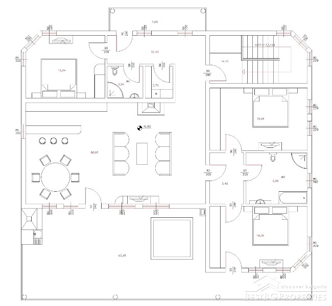
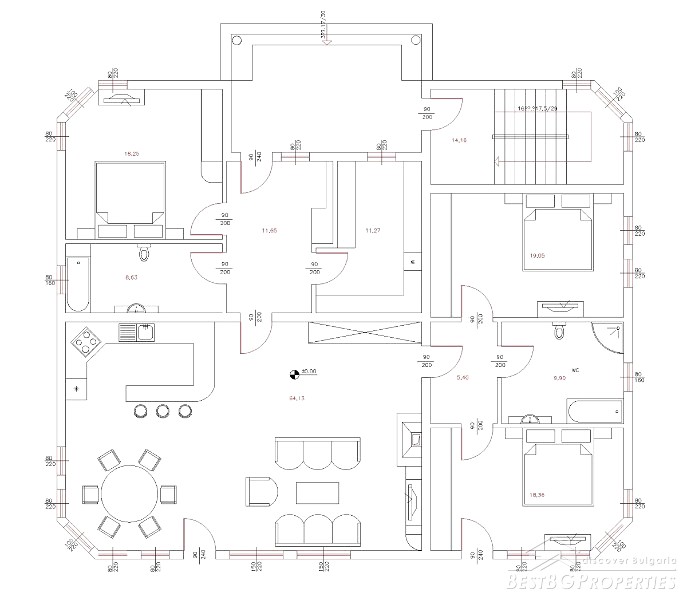
The house is two storeys, with separate entrances. The total living area of the building is 487 sq m. The construction is finished with thermal bricks, inner and outer thermal isolation, mineral plastering, decorative elements from natural stone and other, PVC window joinery - oak colored. There is also satellite TV provided, internet, telephone lines, electricity installation, solar panels, local heating, water and electricity.
Each floor comprises four air conditioners, 200 liter boilers connected to the solar and central heating, radiators for the central heating. The floorings are from natural oak parquet, the inner doors are also from natural oak.
The house comprises a spacious living room with dining area, kitchen, and a French fireplace on the first floor with total area - 70 sq m. This floor also includes three spacious bedrooms, two luxury bathrooms, laundry room with a wardrobe premise, spacious lounge.
The second floor also comprises a spacious living room with dining area, kitchen and French fireplace - total area 65 sq m. There spacious bedrooms, two luxury bathrooms, laundry room, wardrobe room, closet under the stairs, lounge, a balcony facing west, a large panoramic terrace with view to the sea.
The property includes a very spacious yard. It is 956 sq m in size. It comprises a separate building with two garages with remote controlled doors and SOT security system. The yard is perfectly arranged and landscaped. There are few decorative plants and fruit trees, roses, other flowers, garden Jacuzzi, paths with decorative tiles.
