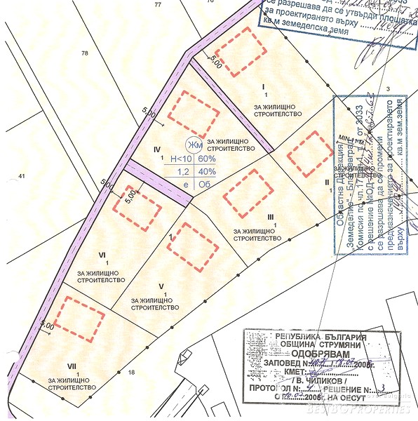
This is another large investment offer for sale in Bulgaria. The suggestion is for a fully regulated plot of land located in a peaceful village included in the district of Strumyani and close to Sandanski. The land size is 6000 sq m which is regulated into 3 plots with permission to build a house on each. Electricity wires cross the land and water is close by. The property is situated at the end of the village in proximity to some other commercial facilities. There is a basic road past the land as can be seen in the photographs.
The village is situated 11 km north from Sandanski and 30 km from the Greek border. It is close to the main road leading to the capital of Bulgaria - Sofia, which is 147 km away. The village is small - yet with all necessary communications and amenities available. There are many new houses and permanently living foreigners here. This is a perfect investment opportunity due to village's proximity to the famous spa resort Sandanski.
