This is a spacious family hotel located in a picturesque village close to the town of Smolyan and the top ski resort of Pamporovo. The hotel is only 2 years old and offers self-catering accommodation for individuals, couples, family and group bookings.
This well designed new but traditionally-styled property can sleep up to 20 people. It has central heating and log fires in each lounge. The hotel has been built and designed to allow for separate apartments access by a central staircase whilst maintaining the cozy atmosphere of a family home.
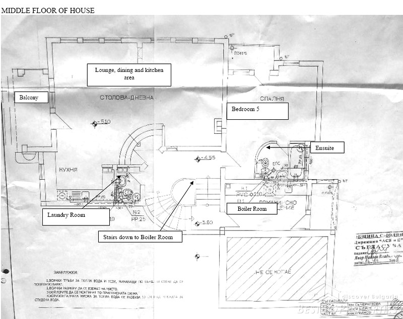
The house is over four floors and whether your party is for 2, 4 or more people it is designed to allow for the privacy of your own space with dedicated lounge, dining and with kitchen facilities.
The hotel can accommodate 14 people in the bedrooms and, including the three sofa-beds in the lounges for larger parties, it can sleep up to 20 people. It is available for use by singles, couples, families, small and large groups.
The entrance to the house is from the main door at the top of the house at road level. All rooms on each floor are accessed from the central staircase which runs from the top to bottom of the house.
It comprises 6 ensuite double bedrooms, there is a lounge/kitchen/dining room on each floor, garage, ski and store room, laundry room and 2 additional toilets. It can be bought as a large family house, or as a business for use as a guest house/ Bed and Breakfast, or hotel. It is finished to a very high standard and has a good outside garden and patio area, and fantastic views over the village, across to Pamporovo, to the Greek Mountains 35 km away. Total living area is 498 sq m and plot size is 1400 sq m.
Located in the heart of the one of the greenest and most picturesque Rhodope Mountains lies the village, a popular ethnographic centre that has preserved its original folklore, traditions and crafts.
The village is widely popular as a base for skiing and snowboarding and is located very close to the modern and well-established ski resorts of Pamporovo and Chepelare.
Pamporovo is the sunniest mountain resort in Bulgaria and lies in the heart of the stunning pine forests of the Rhodope Mountains. The majestic Snezhanka Tower is visible from the house and although Pamporovo is only 6 km away, by road it is 16 km to Pamporovo and 17 km to Chepelare.
Whether you are looking for an outdoor activities holiday, artistic inspiration or simply rest and relaxation and an escape from everyday life the area has something for everyone throughout the four seasons of the year. You can go walking and hiking, mountain biking, climbing, guided walks, trekking, with many places of interest to visit.
There are several good family-run restaurants serving a variety of local and English foods and many corner shops with fresh vegetables and fruit, most of it organic and locally grown, all just a few minutes from the house.
Amenities:
- Restaurants - traditional
- Pubs serving food
- Tourist information centre
- Post office
- Shops
- Small fruit Market Internet café
- Medical centre
- Museum
- Churches and Monasteries
- Local traditions and festivals
- Traditional dancing.
